A third-generation family business, Envirogroup has over 50 years’ continuous involvement in the building services industry.

We often find our most value to clients is being engaged early in the design phases of new projects, we provide feasibility and business cases for review and alternative solution, with our typical clients being:

  • Infrastructure Managers
  • Commercial Property Owners
  • Industrial Plant Operators
  • Body Corporates
  • Property Developers
service1

Design and Consultancy

Our dedicated design team utilise the latest technology including AutoCAD and 3D BIM modelling software, to provide multi discipline, coordinated building services solutions that are tailored for our clients needs and ensuring compliance with all Territorial Authorities and NZ’s Building Regulation requirements.

  • We also assist with Building Consent Compliance issues, working with Clients, Councils and Contractors to advise, mediate and progress in achieving Building Compliance issue resolution.
  • Our Building Services Engineering practice is supported by our Professional Indemnity Policy and Professional Industry Associations, covering all aspects of the relevant NZ Building Code is association with our Industry Partnerships with other specialist Engineering Consultants.
  • Provision of specialist design, installation, operation and maintenance of Embedded Energy Network systems (electrical, hydraulic, wastewater, and gas) for residential apartments and commercial developments
  • Mechanical Services seismic restraint design, certification and implantation.
  • Gas appliance advice, sales, and service
  • Body Corporate engineering support
  • Seismic services restraint design

Installation and Project Management

Our project managers provide a single point of contact for plumbing and other Building Services installations. Our solution-based focus is to provide cost effective solutions designed to meet Client’s, while working towards energy efficient and lower system Life Cycle costs which are important considerations for Property Owners, particularly with regard utility consumption of water, gas, and electricity for projects. Our project monitoring service then ensures system design performance, a process often overlooked which can compromise systems performance and customer satisfaction with technically challenging installations.

  • Commercial and Industrial gas-fitting and combustion equipment installation and service
service1
  • Project Management of commercial property Utilities Connections for Energy, Water, and Wastewater services
  • Residential, commercial, and industrial HVAC systems installation and service
  • Building services BWoF by Licenced Building Practitioner
  • Design and construction management consultants
service1

Remediation and Advice

Specialist Engineering Consulting is provided for properties that have identified degrading or leaking water and waste water plumbing systems installed in commercial properties since the early 2000s, in particular hydraulic networks that have issues with Polypropylene (PPR) reticulated hot and cold water networks, and failures with PVC sewer mains (soil stack risers) in multistorey buildings over 5 levels which can cause significant health risks and property damage. We consult, survey, report, and advise on the most suitable remediation solutions, provide financial advice during this process and provide Project Management to manage Client risk and remediation impact to residents and commercial activities.

Service, Maintenance, and Compliance

Our service and maintenance team operate from dedicated office/workshops in Wellington and Auckland, equipped with a service vehicle fleet. The workshop facilities have gas appliance servicing bays and stock an extensive range of regularly-used components. Clients who choose our fixed-term planned maintenance contracts benefit from efficient, safe, and compliant building services over time.

  • 24hr HVAC, plumbing, electrical, and gas fitting emergency response services for both residential and commercial properties in the greater Wellington and Auckland regions
  • Unique Comprehensive Preventative Maintenance (CPM) programme for body corporate clients to provide savings in body corporate annual general levies, ensuring compliance with the Unit Titles Act 2011 and BWoF
service1
  • Hydraulic, PPR, and wastewater systems surveying, reporting, and risk management advice
  • Gas combustion equipment servicing and maintenance
  • Fixed-term planned maintenance contracts
  • Maintaining building WoF requirements
  • Commercial refrigeration servicing
service1

Our Resources

We’re easy to work with and here to help you!

  • Workshop facilities complete with gas appliance servicing bay, PPR and plastic welding technology, Fusiotherm tools, and an extensive stock of regularly used components and consumables as part of providing 24hr customer support.
  • Specialised commissioning and environmental monitoring equipment including air-quality and oxygen depletion sensors, refrigerant recovery pumps, gas leak detection and combustion efficiency analysers, CCTV cameras, noise meters, and a range of temperature, air, and water flow measuring equipment for ensuring territorial authority compliance.
  • Computer Aided Design facilities and latest 3D BIM modelling software for building services design for clients throughout NZ.
  • Continuing technical and professional development courses and regular staff training to maintain and widen team skills and competence. We are an approved trainer and train our own indentured apprentices and interns.
  • Specialist insurances including Professional Indemnity, Public Liability, Contractors All Risk and Ship Builders Indemnity.
  • An extensive and constantly updated reference library of New Zealand and overseas Codes, Regulations, Standards and technical literature relevant to our design and maintenance work.
  • Service vehicle fleet based in Auckland and Wellington.

Seismic Bracing for Building Services - Design and Installation

Technology in Seismically restrain building services is compulsory

The New Zealand Building Code clause B1 - Structure requires that both structural and nonstructural building elements remain stable under imposed loads such as those caused by earthquakes, as poorly restrained engineering systems within buildings, including building services, could be a potential hazard for occupants during an earthquake and leave the building unusable and unsafe afterwards.

New Zealand Standard NZS 4219 sets the seismic performance of seismic bracings and provides a means of compliance with the NZ building code requirements for building services such as:

  • Ventilation or A/C ducting
  • Piping systems, including those for hot and cold water supply
  • Water tanks and vessels
  • Components suspended from the building structure (floor slab or roof structure)

While New Zealand Building Codes provide acceptable solutions for seismic restraints of building services until a certain size, like water heaters up to 360 litre capacity, for all cases not covered by Codes & Standards, a special design compliant with NZS 4219 is required.

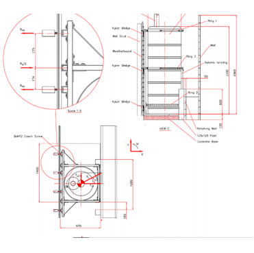
Achieving the most suitable compliant and convenient solutions depends on location and kind of structural building elements around the building service to be used as an anchorage and therefore our work is also to identify most suitable structural element to carry the estimated seismic loads, which is sometimes not evident in old constructions where no information for structural is available.

Therefore, we rely on our experience and possible investigation to make a selection of building elements depending on the solution of structural bracing to achieve.

We use 3D models to develop this solution and produce possible drawings for workshop & installation and report on load estimates and compliance with NZ Codes and Standards.

service1

Original tanks installation with poor seismic restrain

service1

Solution of seismic structure with new tanks in existing service space on top of the building

service1

Seismic bracing assembly to be used for their installation.

In case of upgrade of existing mechanical & hydraulic building services, we can check their compliance with NZ codes & standards, to avoid oversizing and to optimize service capacities

service1

Structure built in our workshop

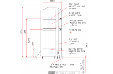
We also check if capacities of service like water storage tanks are oversized to the NZ Standards & Codes, as the bigger the capacity, the higher the seismic loads, and then the more expensive is the structure.

This was the case in a recent project in Wellington where existing cold water storage on top of the building of 4 x 3,000 litre has been reduced to 4 x 1,000 litre, which according to our estimate was still suitable to serve 50 units.

This reduction allowed the use of smaller tanks involving lower seismic loads on the building, so increasing its resilience and allowing to fit new seismic bracings into the allocated service space without requiring any building alteration.

service1

Structural checks complying with NZS 4219

service1

Workshop drawings for structure fabrication.

Another example of structural design -

In a townhouse development in Johnsonville, Wellington where we have designed consented, and Installed seismic bracings to retain 1,000 litre capacity stormwater tanks.

service1

Installed bracing structure and 2 x 1,000 litre water tanks assembled on

service1

Structure assembled on site

service1

- Structural checks

service1

Workshop drawings

Innovative Products and Service for Construction Projects.